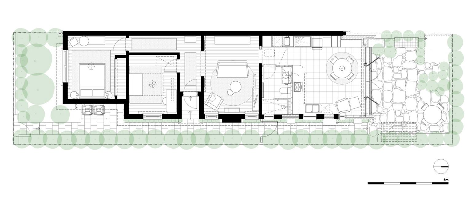
Housing of Siera Cat
Kangbangun Hub platform konstruksi dan renovasi bangunan rumah anda, kami merupakan wholesaler bahan bangunan dengan saluran distribusi hampir merata di Indonesia. Kangbangun Hub serba bangun serba ada.
- House design ( exterior + interior)
- Restaurant design
- House
- Educational Instituition
- Hospitals
- Market, Super Shop
- Farm house design
- Video graphy for Property and Estate
- Master plan for big land
We sell Electrical & Smarthome, Smart Building, Smart Energy Saving
Steel and Material Building.
Task
New Building of Siear House. House for a Black Cat






Kami adalah tim kreatif yang bersemangat dengan ide-ide unik dan membantu perusahaan maupun perorangan untuk menciptakan identitas luar biasa dengan membuat Desain Arsitektur terbaik, dan Kontraktor Umum